企業信息
北京智控理工偉業科教設備有限公司
地址:北京市通州區馬駒橋景盛南二街15號(中關村園區金橋科技產業基地)
電 話:010-82827827 82827835
傳 真:010-68948559
網 址:http://www.bjlg.com
郵 箱:Ligong99@163.com
QQ:476528239 1183686277
更多相關信息
- 無線電發送與接收實驗
- 位置隨動控制系統
- 溫度控制模型
- 信號與系統·控制理論計算機控制技術實驗箱(配USB數據采集卡、聯網型)
- 信號與系統控制理論實驗箱
- 電能表接線仿真培訓裝置
- 低壓計量反竊電仿真培訓裝置
- 10kV高壓柜實訓裝置
- 低壓電路實訓裝置
- 斷路器漏電保護培訓裝置
- 二次負荷及壓降模擬系統
- 門禁控制系統考核培訓裝置
- 巡更管理系統考核培訓裝置
- 通風排煙系統考核培訓裝置
- 氣體滅火系統培訓裝置
- 采油實訓裝置
- 傳熱操作實訓裝置
- 吸收工考核培訓裝置
- 萃取工考核培訓裝置(DCS控制)
- 輪胎硫化機實訓裝置
- 全數字交流變頻控制提升機實訓裝置
- 架線式煤礦電機車變頻調速系統實訓裝置
- 礦井提升機系統實訓裝置(直流調速)(工程型)
- 三專兩閉鎖演示裝置
- 井下雙回路供電演示裝置
- 礦井膠帶輸送機電氣控制實訓裝置
- 礦井通風機電氣控制實訓裝置
- 絡筒機電氣技能實訓裝置
- 劍桿織機電氣技能實訓裝置
- 絡筒機電氣技能實訓裝置
- 整經機電氣技能實訓裝置
- 細紗機電氣技能實訓裝置
- 梳棉機電氣技能實訓裝置
- 單軸流開棉機電氣技能實訓裝置
- 冷飲制品自動化生產線實訓系統(工程型)
- 啤酒自動化生產線過程控制實訓系統(工程型)
- 電力系統發電機保護仿真實訓裝置
- 電力系統微機變壓器保護實訓考核裝置
- 熱工儀表及控制實訓裝置
- 裝表接電工實訓系統
10kV高壓柜實訓裝置
一、技術指示
裝置工作電源:AC/DC220V10% 50HZ 加熱器工作電源: AC220V10% 50HZ
工作環境:溫度-20--50℃, 相對濕度≤95%RH
功耗:≤10W
4、抗電強度:外殼與端子間大于AC2000V。
5、絕緣性能:外殼與端子間大于100MΩ。
6、模擬指示說明:斷路器狀態指示(無源觸點輸入)斷路器位置指示(無源觸點輸入)合閘時,合閘觸點閉合,紅色模擬條亮工作位置觸點閉合時,紅色垂直模擬條亮。
分閘時,分閘觸點閉合,綠色模擬條亮 實驗位置觸點閉合時,綠色水平模擬條亮。接地閘刀位置指示(無源觸點輸入) 彈簧儲能指示(無源觸點輸入) 觸點閉合,紅色模擬條亮,表示接地合閘 觸點閉合,紅色燈亮,表示已儲能 觸點斷開,綠色模擬條亮,表示接地斷開 注:失電狀態下所有的發光指示均不亮,以上接點信號均來自斷路器的輔助接點。
高壓帶電指示部分 LED啟輝電壓(KV):母線電壓0.15~0.65 閉鎖啟控電壓(KV):母線電壓0.65
溫、濕度控制部分
傳感器路數:兩路凝露 兩路溫度(A型): 一路凝露 一路溫度(C型)
邏輯關系:當溫度<5度或濕度>93%RH時啟動加熱(兩路加熱),當溫度>15度時停止加熱,
當溫度>40度時系統強制停止加熱,過熱指示燈亮,過熱輸出接點閉合
斷線報警:加熱器發生斷線,相應報警指示燈亮,報警輸出接點閉合
手動加熱開關:開關可處于自動或手動兩種狀態,通常是在自動狀態,此時溫濕度控制邏輯同上,當按下開關后,則處于手動強制加熱狀態.
智能防誤提示功能
當斷路器處于試驗位置與工作位置之間,此時斷路器處于合閘狀態時,有“請分斷路器”的語音提示,直至斷路器分閘操作后止,以此防止操作者在斷路器處于合閘狀態時,誤強行推進手車至工作位置。當斷路器處于工作位置或試驗位置時, 斷路器又處于合閘狀態時, 如果接地開關誤被強制合閘,有“請分接地開關”的語音提示,直至操作者分閘操作后停止,以此防止操作者誤合接地開關。 當以上兩種情況同時發生時,有“請分斷路器、請分接地開關”的語音提示。
通訊功能
本設備具有RS485通訊接口,可實時傳送手車位置狀態、斷路器位置狀態、彈簧儲能狀態、接地開關狀態、是否低溫加熱、是否過熱報警等一系列參數。
其他輔助功能
本裝置面板上,按用戶指定要求可選配分/合閘萬轉開關、遠方/就地萬轉開關、儲能及柜內照明開關, 用戶可直接在本裝置上進行相關操作。
10kV高壓柜實訓裝置開關柜智能操控裝置(一次性圖紙)

開關柜智能操控裝置*安裝方式與接線圖
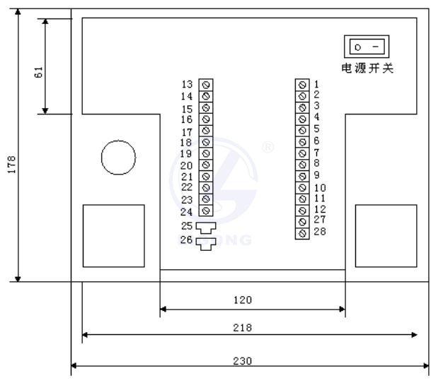
1、安裝方式:面板式安裝(厚度60) 單位:mm
外形及開孔尺寸(單位:mm)



裝置工作電源:AC/DC220V10% 50HZ 加熱器工作電源: AC220V10% 50HZ
工作環境:溫度-20--50℃, 相對濕度≤95%RH
功耗:≤10W
4、抗電強度:外殼與端子間大于AC2000V。
5、絕緣性能:外殼與端子間大于100MΩ。
6、模擬指示說明:斷路器狀態指示(無源觸點輸入)斷路器位置指示(無源觸點輸入)合閘時,合閘觸點閉合,紅色模擬條亮工作位置觸點閉合時,紅色垂直模擬條亮。
分閘時,分閘觸點閉合,綠色模擬條亮 實驗位置觸點閉合時,綠色水平模擬條亮。接地閘刀位置指示(無源觸點輸入) 彈簧儲能指示(無源觸點輸入) 觸點閉合,紅色模擬條亮,表示接地合閘 觸點閉合,紅色燈亮,表示已儲能 觸點斷開,綠色模擬條亮,表示接地斷開 注:失電狀態下所有的發光指示均不亮,以上接點信號均來自斷路器的輔助接點。
高壓帶電指示部分 LED啟輝電壓(KV):母線電壓0.15~0.65 閉鎖啟控電壓(KV):母線電壓0.65
溫、濕度控制部分
傳感器路數:兩路凝露 兩路溫度(A型): 一路凝露 一路溫度(C型)
邏輯關系:當溫度<5度或濕度>93%RH時啟動加熱(兩路加熱),當溫度>15度時停止加熱,
當溫度>40度時系統強制停止加熱,過熱指示燈亮,過熱輸出接點閉合
斷線報警:加熱器發生斷線,相應報警指示燈亮,報警輸出接點閉合
手動加熱開關:開關可處于自動或手動兩種狀態,通常是在自動狀態,此時溫濕度控制邏輯同上,當按下開關后,則處于手動強制加熱狀態.
智能防誤提示功能
當斷路器處于試驗位置與工作位置之間,此時斷路器處于合閘狀態時,有“請分斷路器”的語音提示,直至斷路器分閘操作后止,以此防止操作者在斷路器處于合閘狀態時,誤強行推進手車至工作位置。當斷路器處于工作位置或試驗位置時, 斷路器又處于合閘狀態時, 如果接地開關誤被強制合閘,有“請分接地開關”的語音提示,直至操作者分閘操作后停止,以此防止操作者誤合接地開關。 當以上兩種情況同時發生時,有“請分斷路器、請分接地開關”的語音提示。
通訊功能
本設備具有RS485通訊接口,可實時傳送手車位置狀態、斷路器位置狀態、彈簧儲能狀態、接地開關狀態、是否低溫加熱、是否過熱報警等一系列參數。
其他輔助功能
本裝置面板上,按用戶指定要求可選配分/合閘萬轉開關、遠方/就地萬轉開關、儲能及柜內照明開關, 用戶可直接在本裝置上進行相關操作。
10kV高壓柜實訓裝置開關柜智能操控裝置(一次性圖紙)

開關柜智能操控裝置*安裝方式與接線圖
1、安裝方式:面板式安裝(厚度60) 單位:mm
外形及開孔尺寸(單位:mm)



- 上一篇:低壓電路實訓裝置
- 下一篇:低壓計量反竊電仿真培訓裝置



